成約済【売買(賃貸可)/丹波市山南町/土間と離れある日本家屋】
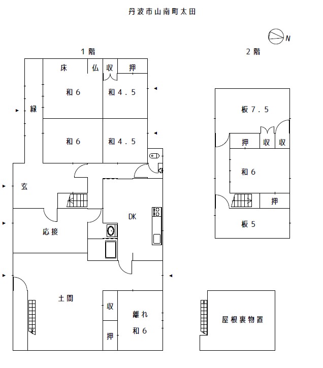
丹波市山南町、2階建日本家屋、平家の離れ、離れと母屋の間に広い土間があります。車庫と広い庭があり畑できます。賃貸も可(月額4万円)、土地150坪、床面積150平米超。近隣に讃岐うどん(ゑにちうどん)や週末営業の大納言小豆のカフェ(あんことコーヒー小鳥遊)など少しずつ店が出来て面白いエリアです。近くには名刹慧日寺さんがあります。








丹波市山南町、2階建日本家屋、平家の離れ、離れと母屋の間に広い土間があります。車庫と広い庭があり畑できます。賃貸も可(月額4万円)、土地150坪、床面積150平米超。近隣に讃岐うどん(ゑにちうどん)や週末営業の大納言小豆のカフェ(あんことコーヒー小鳥遊)など少しずつ店が出来て面白いエリアです。近くには名刹慧日寺さんがあります。







