【賃貸/神戸市東灘区/夜景見下ろす和モダンマンション/8万】

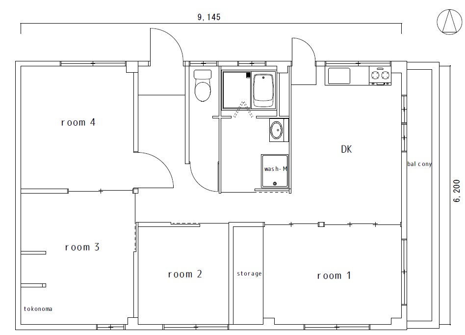
人気沿線の阪急神戸線。阪急御影駅の山側。関西屈指の人気エリアから夜景を見下ろすマンション、56.7平米の4DK。 魅力の1つは眺望です。景色を邪魔する建物がありません。また高級住宅街で建築の法律が厳しく、高層建築ができないため、これからも視界が遮られることがありません。坂道をのぼりますが、駅徒歩圏内でこの眺望は値打ちあります。 大阪神戸の街並みを見下ろし、朝日を眺めながら朝食をとったら気持ちいいと思います。 1フロア1戸の仕様です。古民家の建具を再利用し、1部屋は床の間つき和室です。建具を外せば広い部屋にできるので4DK/3LDK/2LDKに変更できます。床の間脇に建具を置ける場所も作ってあります。初期費用を抑えて頂くため、礼金ゼロ。坂の上り下りは大変ですが、電動自転車で通勤し絶景の家で癒やされるライフスタイルを選ぶ方もいらっしゃいます

阪急御影駅周辺には、ピッツェリアのベーネベーネ、旧財閥邸宅のSOSHUEN、MAMEHIKO、中華の四川など、阪神間住民がわざわざ訪れる名店が点在しています。香雪美術館や白鶴美術館もあり、とても雰囲気のよい街並みです。すぐ近くの絶景カフェteqteqでくつろげます

イビザ御影屋上
イビザ御影屋上
外観
間取図
居室